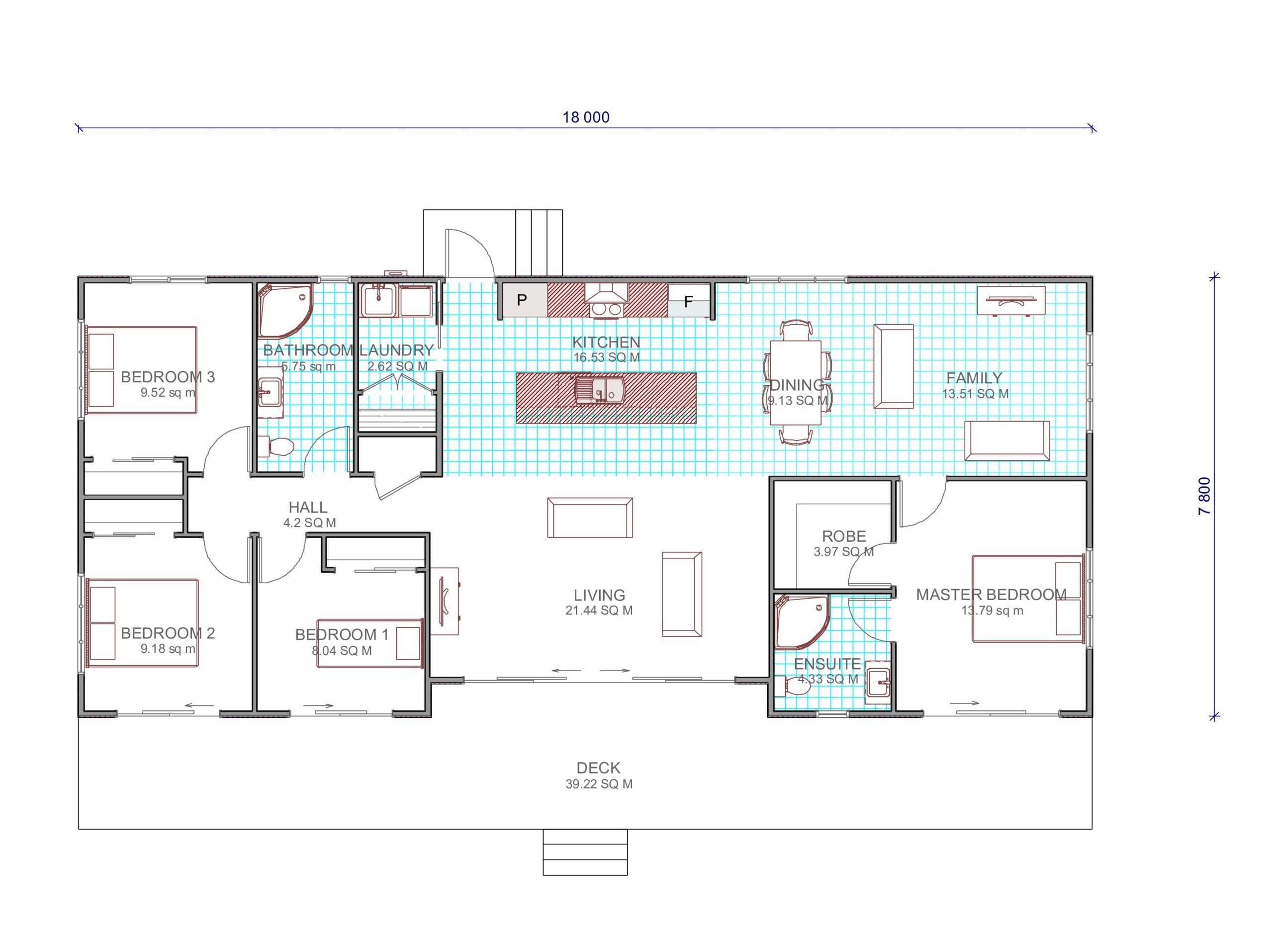
Oasis 4
The Oasis 4 is a well-appointed family home that maximises space to its full potential. Three of the bedrooms have their own ranchslider straight onto the deck. This lets fantastic natural light into the home making it a warm and inviting place to be.
Do you Provide Finance for your Homes?
No, we do not provide long term finance for our homes. However we can provide bridging finance to help facilitate your lenders requirements. Some banks are reluctant to finance a manufactured home due to them having limited security of their funds during the offsite manufacturing process.
Once the home has been delivered to site, the bank regains full security of their investment and is happy to release funds. In these situations, we can help by offering bridging finance options.
HOME DESIGNS TO SUIT YOUR LIFESTYLE
Floorplan Designs
We have a range of home designs and can work with you to customise
your dream home. So whether it’s a functional family home, contemporary
beach bach, large lifestyle homestead, or minor dwelling, simply share your
ideas and let us bring your dream to you.